Rosewood, 50 The Avenue, Girvan, KA26 9DT
- Offers over £349,750
Rosewood, 50 The Avenue, Girvan, KA26 9DT
- Offers over £349,750
Overview
Property ID: HZ50TheAvenueGirvan
- Detached House
- 5
- 229 Sq M
Description
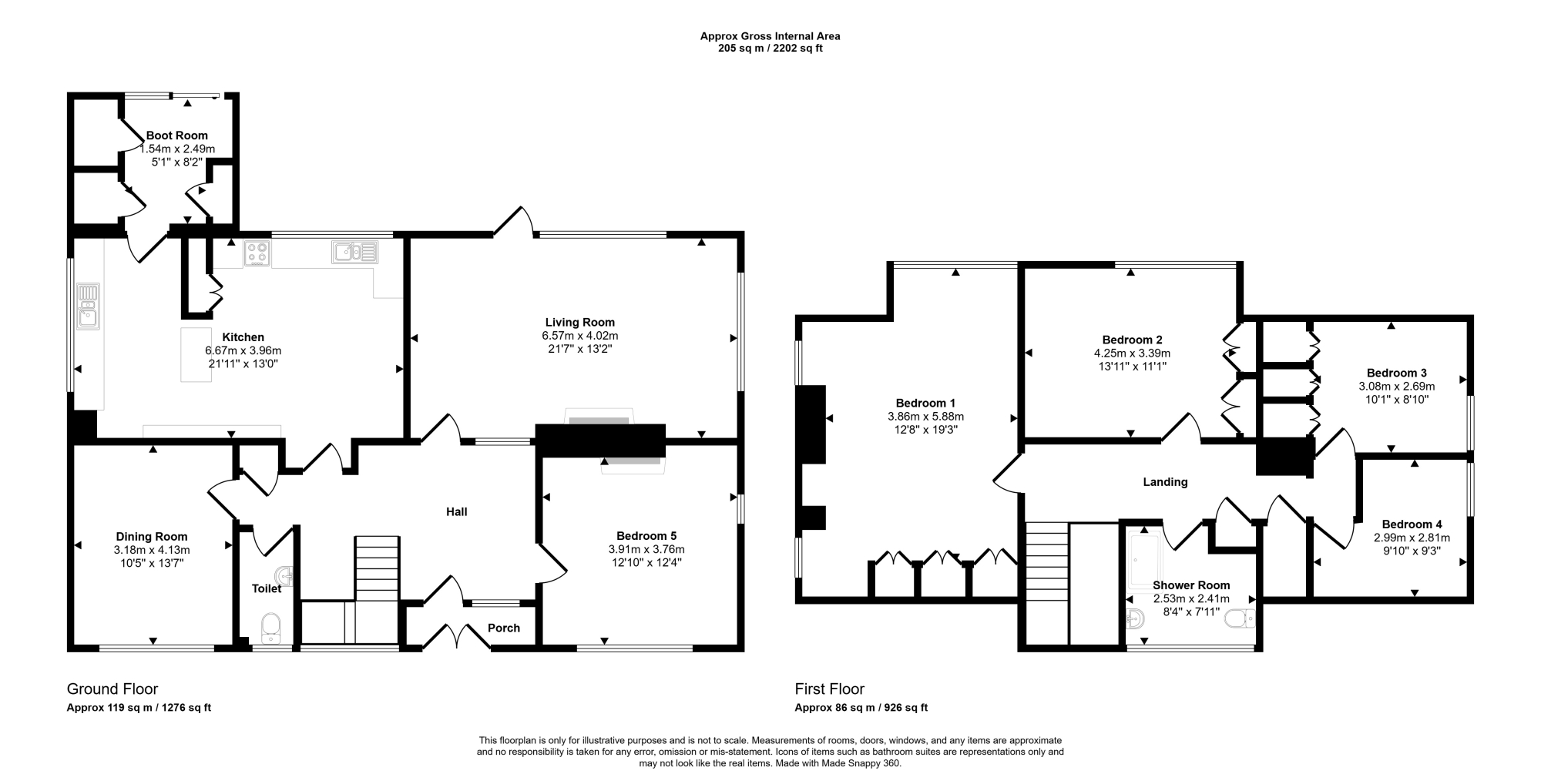
Offered for sale for the first time since it was built in 1963, this distinctive architect-designed detached house represents a rare opportunity to acquire a home of genuine individuality, generous proportions and enduring appeal.
Extending to approximately 205 sq m (2,207 sq ft), the property occupies a prominent corner position within mature, well-established gardens, and enjoys a highly desirable setting in a popular residential area, well placed for a wide range of local amenities.
Property Brochure
Schedule - Rosewood, 50 The Avenue
Details
Updated on April 16, 2026 at 4:44 pm-
Property ID HZ50TheAvenueGirvan
-
Price Offers over £349,750
-
Property Size 229 Sq M
-
Bedrooms 5
-
Property Type Detached House
-
Property Status For Sale
360° Virtual Tour
Energy Class
-
Energetic class: D
-
EPC Current Rating: D67
-
EPC Potential Rating: C72
- A+
- A
- B
- C
- | Energy class DD
- E
- F
- G
- H
Address
Open on Google Maps-
Address: 50 The Avenue, Girvan
-
City: Girvan
-
Postcode: KA26 9DT
-
Area: South Ayrshire
Similar Listings
- tommurray












































