Trent Vale Cottage, Heronsford, Ballantrae KA26 0LL
- Offers over £179,750
Trent Vale Cottage, Heronsford, Ballantrae KA26 0LL
- Offers over £179,750
Overview
Property ID: HZTrentValeCottageHeronsford
- Semi-Detached House
- 3
- 1
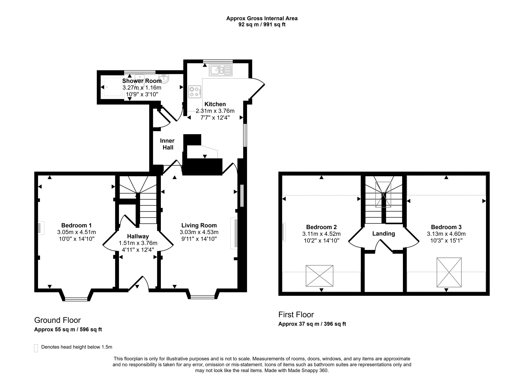
- 92 Sq M
Description
Located within the small and peaceful hamlet of Heronsford, just a few miles from Ballantrae, this charming three-bedroom semi-detached cottage enjoys a truly idyllic position within a sheltered wooded glen.
Surrounded by mature trees and natural beauty, the property offers a rare sense of privacy and tranquillity, with attractive views extending down towards the Water of Tig, which flows through the glen below. The setting provides a perfect escape from the pace of modern life, while still remaining within easy reach of local amenities.
Property Brochure
Schedule - Trent Vale, Heronsford
Details
Updated on April 24, 2026 at 5:07 pm-
Property ID HZTrentValeCottageHeronsford
-
Price Offers over £179,750
-
Property Size 92 Sq M
-
Bedrooms 3
-
Bathroom 1
-
Property Type Semi-Detached House
-
Property Status For Sale
360° Virtual Tour
Energy Class
-
Energetic class: D
-
EPC Current Rating: D65
-
EPC Potential Rating: A96
- A+
- A
- B
- C
- | Energy class DD
- E
- F
- G
- H
Address
Open on Google Maps-
Address: Trent vale cottage, Heronsford, Ballantrae
-
City: Ballantrae
-
Postcode: KA26 0LL
-
Area: South Ayrshire
Similar Listings
- tommurray






























